top of page
RIV - appartement rivoli - [55 m²]
rénovation complète d’un appartement
programme : appartement
situation : Paris
maitrise d'ouvrage : client privé
surface : 55 m²
mission : complète
statut : livré
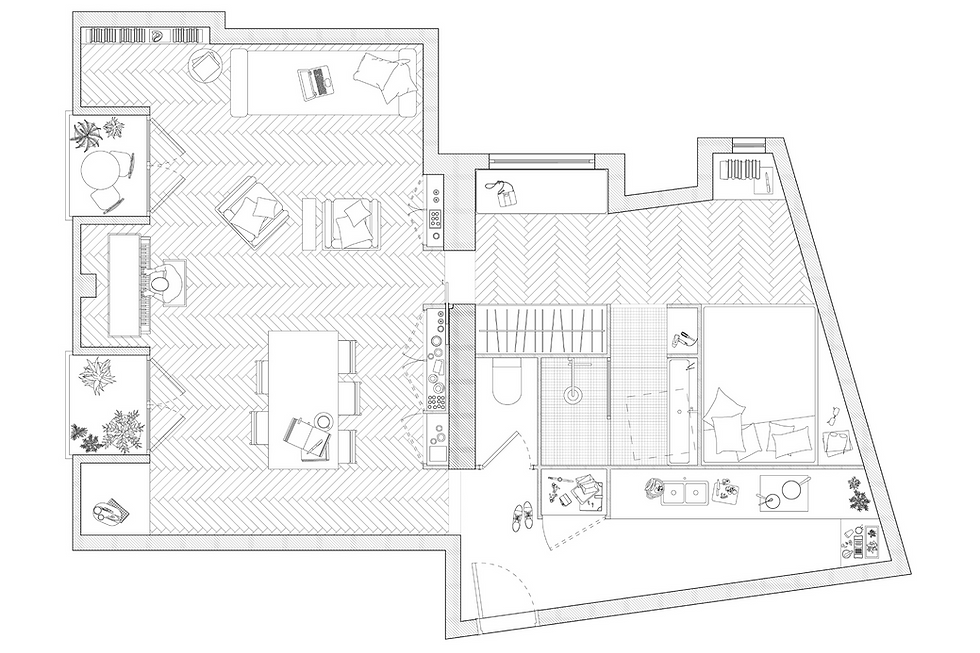
situé au dernier étage d'un immeuble haussmannien, cet appartement sous les toits offre une vue imprenable sur Paris et plusieurs de ses monuments. En respectant la contrainte du mur porteur situé au centre de l'appartement, les fonctions de jour et de nuit sont redistribuées de manière rationnelle, de manière à créer un séjour généreux et des espaces fonctionnels optimisés.

RIV - existant - plan

RIV - projet - plan

RIV - existant - axonométrie

RIV - existant - plan

RIV - chantier

RIV - chantier
06 16 71 35 82
06 75 51 32 86
54 rue de montreuil - 75011 paris
bottom of page




